物件詳細
物件概要
魚崎南パークホームズ弐番館
3,190 万円(税込)
情報更新日:2026年04月28日
多様なインテリアと調和するモノトーンでまとめられた建具
飽きのこない色調の室内
神戸の海を望むリノベーション物件
| 販売価格 | 3,190万円(税込) | ||
|---|---|---|---|
| 専有面積 | 68.59(㎡) | ||
| 物件種別 | 区分マンション | ||
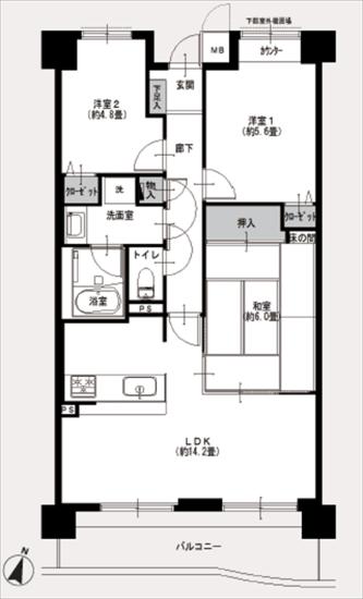
| 間取り | 3LDK | ||
| 所在地 | 神戸市東灘区魚崎南町5丁目5-1 | ||
| 沿線情報 |
阪神本線「魚崎」駅 徒歩8分 六甲ライナー「南魚崎」駅 徒歩6分 |
||
リノベーション概要
クロス貼替
キッチン新調
水栓取替え
トイレ新調(洗浄便座付)
浴室新調
浴室乾燥機新調
洗面化粧台新調
洗濯パン新調
CF貼替
建具交換
畳表替
襖交換
フローリング貼替
キッチン新調
水栓取替え
トイレ新調(洗浄便座付)
浴室新調
浴室乾燥機新調
洗面化粧台新調
洗濯パン新調
CF貼替
建具交換
畳表替
襖交換
フローリング貼替
設備
物件詳細
| 所在階 | 5 | 向き | 南 | ||
|---|---|---|---|---|---|
| 築年月 | 1995年11月 | 構造 | RC造8階建 | 現況 | 空家 |
| 取引形態 | 媒介 | 事務所利用 | - | ||
| 管理費(月額) | 9,400円 | 修繕積立金(月額) | 10,290円 | その他費用(月額) | -円 |
| 管理形態 | 全部委託 | 引渡時期 | 相談 | 土地権利 | 所有権 |
| 駐車場 | 敷地内有 | エレベーター | 有 | ||
| ペット飼育 | 不可 | 備考 | - |
地図・周辺環境
TEL.078-806-0388
9:00~19:00(毎週水曜を除く)
SERVICE事業紹介
Copyright 2026 Daiichijuken.jp
All right reserved.